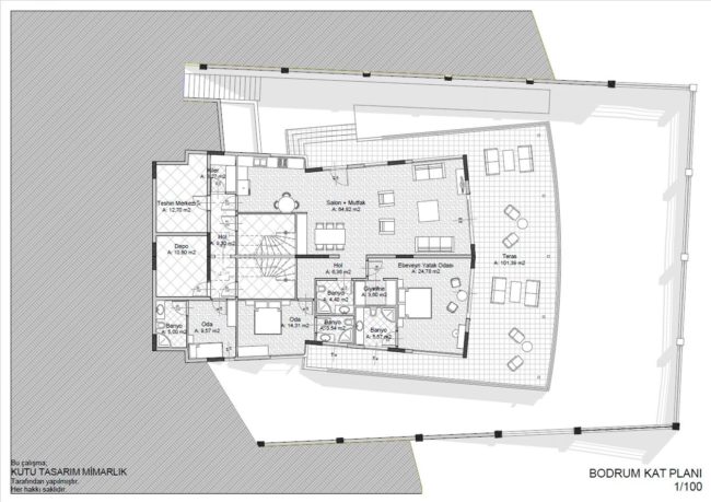
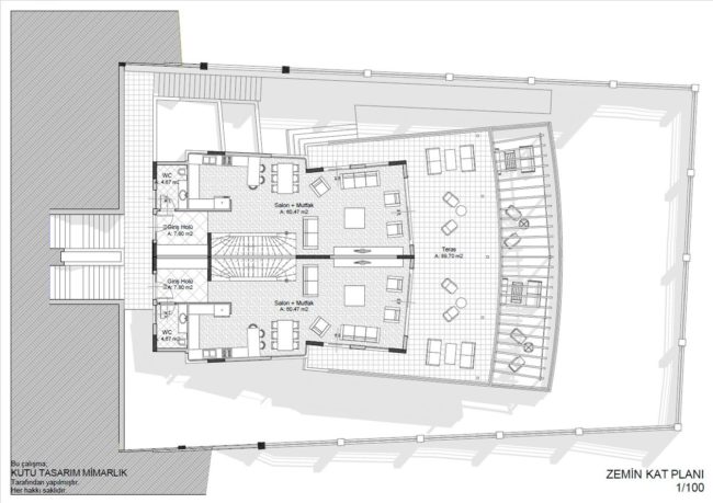
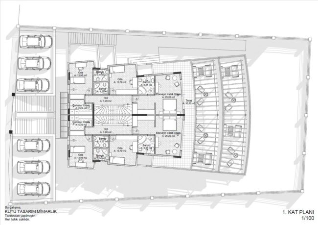
Bengü Yaz Villası - Paşalimanı / Çeşme
İzmir Çeşme’de 595m² inşaat alanına sahip ikiz villa için alternatif çözümler yaratılarak mal sahiplerinin istek ve ihtiyaçlarına ve güncel yönetmeliklere uygun, mimari estetiği ve kullanışlılığı ön planda tutularak mimari proje, vaziyet yerleşimi, cephe tasarımları alternatif çözümleri ile yapılıp, 3d sunumları yapılmış, ve mimari uygulama çizimleri hazırlanmıştır, Ekim-2011.























